※工事価格は、端数切捨ての凡その金額を表示しています。


家族構成やライフスタイルの変化に応じて間取りを見直し、住み心地と安全性を向上。
施主の理想を丁寧なヒアリングと提案力で具体化し、高品質な空間を現実。
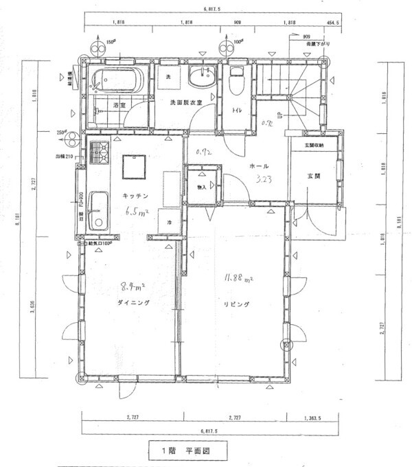
キッチンの対面化や動線改善により、日々の暮らしやすさと将来の柔軟性を両立。
水回りの設備の省エネ化やインフラ更新で、快適さと長期的な安心を確保。
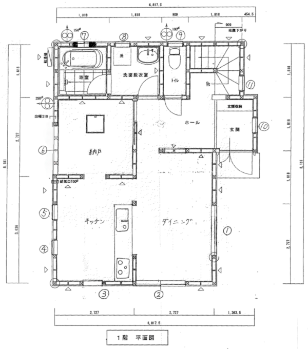
夫婦二人世帯の施主の希望は、家族構成やライフスタイルの変化に対応した住み心地の向上と古い住宅設備の更新。
これに対して安全安心快適な住まいの提案として、間取りの変更、水廻りを中心とする設備の更新、将来を見据えた建築部材の安全化などで対応した。施主の意をくみ取るために丁寧な説明や多様な選択肢の提示で共通認識を得ようと努めた。キッチンの対面化、メンテナンス性の良い電気や給排水の整備、安全や省エネなどの技術力によって総合的に資産価値の向上が得られた。
施主からは、地元の業者である故の迅速で丁寧な対応を評価され、想像以上の住まいが得られた、として喜ばれた。現場の安全性や周囲に対する配慮にも好感が持てる。

After:廊下

After:階段



After:玄関
第2回 全リ協・RECACO・住推協 住宅リフォームコンテスト
「住まいの塗装・外装・外構部門」で、最優秀賞を受賞しました。
主催:(一社)全建総連リフォーム協会
(一社)リフォームパートナー協議会
(一社)住宅リフォーム推進サポート協議会
共催: 全国建設労働組合総連合